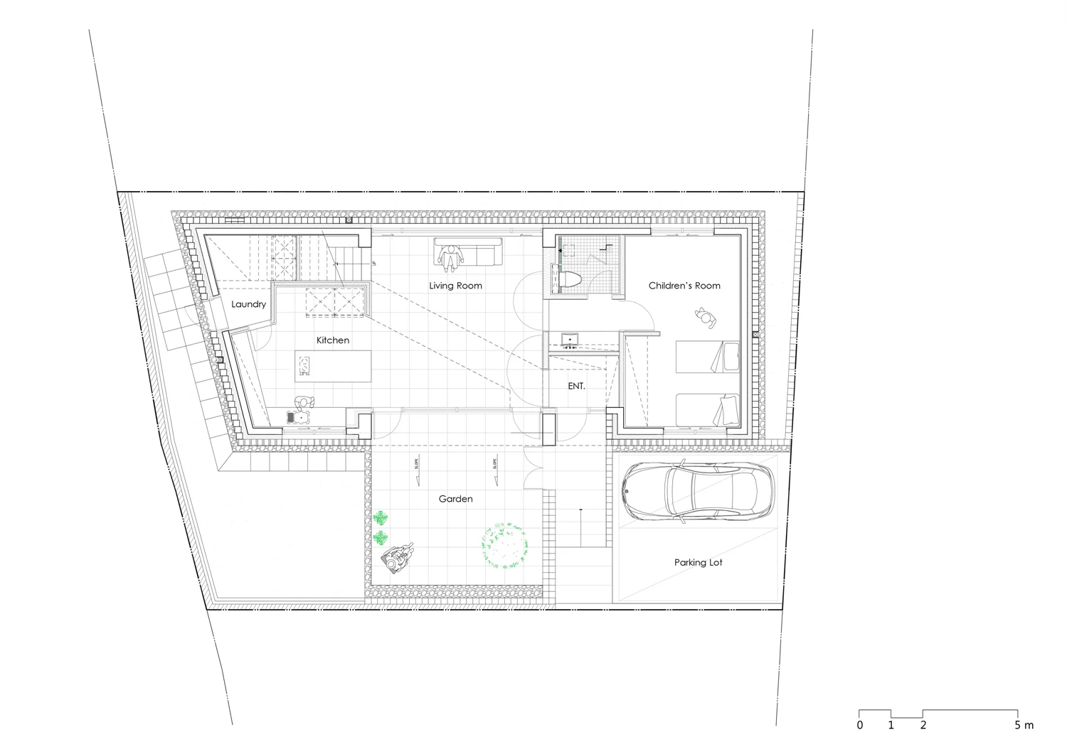
May 30 May 30 담류헌 Seona Kim 2016, ARCHITECTURE, HOUSE 談流軒담류헌 View fullsize View fullsize View fullsize View fullsize View fullsize View fullsize View fullsize View fullsize View fullsize 설계 : 서현(한양대학교) + NAU Architects + 소수 건축사사무소 위치 : 경기도 파주시 산남동 용도 : 단독주택 설계기간 : 2015.07 - 2016.02 시공기간 : 2016.02 - 2016.06 대지면적 : 267.00 ㎡ 연면적 : 180.72 ㎡ 건폐율 : 38.58 % 용적률 : 67.69 % 규모 : 지상 2층 높이 : 7.40 m 구조 : 철근 콘크리트 건축시공 : 지토종합건설 조경 : Green Graphy J 1 이야기가 흐르는 집 손님을 집에 초대해서 함께 이야기 나누는 것을 좋아해, 집에 손님이 끊이지 않는다는 가족. 가족의 라이프스타일에 고려해 집의 중심공간에 부엌과 한 공간으로 읽히는 거실을 제안했다. 2층까지 뚫려 높은 층고를 가진 거실은 유리창 밖으로 마당으로 확장된다. View fullsize 1F PLAN View fullsize 2F PLAN View fullsize ELEVATION-1 View fullsize ELEVATION-2 View fullsize ELEVATION-3 View fullsize ELEVATION-4 View fullsize SECTION-1 View fullsize SECTION-2 View fullsize SECTION-3 View fullsize SECTION-4 View fullsize SECTION-5 2 Q Block 외부 벽면과 담장에 사용된 콘크리트 블럭인 Q block(이하 큐블럭)은 190×190×190mm 의 규격으로, 창문, 선홈통, 사다리 등은 모두 큐블럭 사이즈에 맡게 설계되었다. 일반 벽돌보다 깊이가 깊어 내부에 다양한 그림자를 만들어내며, 큐블럭 안에 공기층을 형성해 단열에도 효과가 있다. View fullsize View fullsize View fullsize View fullsize Featured Dec 10, 2016 [담류헌] 12월의 담류헌 Dec 10, 2016 Dec 10, 2016 Nov 24, 2016 [담류헌] 우수 드레인 Nov 24, 2016 Nov 24, 2016 Nov 1, 2016 [담류헌] 계절에 따라 변해가는 집 Nov 1, 2016 Nov 1, 2016 Apr 30, 2016 [담류헌] 큐블럭 시공 Apr 30, 2016 Apr 30, 2016 Leave a comment